【レベル1】2D図面から3Dモデルを作成せよ!テルえもんクエストII(1)(4/4 ページ)

» 2025年06月26日 07時00分 公開
前のページへ 1|2|3|4       

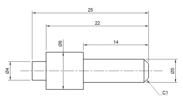
問スター(1)があらわれた!

 さて、3つのアイテム(第三角法、隠れ線、寸法補助記号)を手に入れたところで、いよいよ問スターの登場です!

 図12に示した2D図面を読み取り、3Dモデルを作成してみましょう。

問スター(1) 図12 問スター(1)[クリックで拡大]

 まずは自力でチャレンジ!

 どうしても倒せない(分からない)、倒し方の手順を知りたいという方は、テルえもん直伝の攻略法動画を参考にしてみてください(動画2)。

動画2 問(モン)スターを倒せ! 2D図面から3Dモデルの作成

問スター(2)があらわれた!

 おや、さらに問スターが出現したようです(図13)。1匹倒したからといって油断は禁物です。同じように、こちらの2D図面を読み取って、3Dモデルを作成してみましょう!

問スター(2) 図13 問スター(2)[クリックで拡大]

 問スター(2)の倒し方の手順と、テルえもん直伝の攻略法動画は次回お届けします!! それでは、次回のクエストでまたお会いしましょう! (レベル2へ続く

⇒ 連載バックナンバーはこちら

図面の読み取りに必要な3つのポイント

Q. 第三角法とは?

A. 第三角法は図面を描く際のルールの一種であり、前から見た図(正面図)を基準に、上から見た図(平面図)は必ず正面図の真上に、右から見た図(右側面図)は必ず正面図の真横にくるように描く。日本では、第三角法が一般的に採用されており、3D CADの資格試験などでもこの方式が使われている。

Q. 隠れ線(隠線)とは?

A. 形状の裏側や内側など、表からは見えない部分を“破線(点線)”で表したものを隠れ線(隠線)という。部品の奥に空いている穴なども、隠れ線を使うことで図面上から深さや位置を把握できる。

Q. 寸法補助記号とは?

A. 機械設計の図面に記された記号のことで、さまざまな種類がある。3D CADの資格試験などに登場する、基本的かつ重要なものとして、直径を意味する「Φ」、半径を意味する「R」、45度の面取りを意味する「C」などがある。

筆者プロフィール

小原照記(おばら てるき)

いわてデジタルエンジニア育成センターのセンター長、3次元設計能力検定協会の理事長も務める。3D CADを中心とした講習会を小学生から大人まで幅広い世代の人に行い、3Dデータを活用できる人材を増やす活動をしている。また企業の困り事に対し、デジタルツールを使って支援している。人は宝、財産であると考え、時代に対応する、即戦力になれる人財、また、時代を創るプロフェッショナルな人財の育成を目指している。優秀な人財がいるところには、仕事が集まり、人が集まって、より魅力ある街になっていくと考えて地方でもできること、地方だからできることを考えて日々活動している。


前のページへ 1|2|3|4       

Copyright © ITmedia, Inc. All Rights Reserved.

特別協賛PR
スポンサーからのお知らせPR
Pickup ContentsPR
Special SitePR
あなたにおすすめの記事PR