【レベル2】指示された寸法値のみ使用せよ!テルえもんクエストII(2)(1/3 ページ)

設計スキルのレベルアップを目指す設計者の皆さんを“冒険者”に見立て、さまざまな“問(モン)スター”に挑む「テルえもんクエストII」の世界へようこそ。【レベル2】のテーマは、「指示された寸法値のみ使用せよ!」だ。

» 2025年07月25日 06時00分 公開

本連載について:

ようこそ、「テルえもんクエストII」の世界へ――。設計スキルのレベルアップを目指す設計者の皆さんを“冒険者”に見立て、毎回クエスト(課題/テーマ)に沿って、さまざまな問(モン)スター(問題)が登場します。

筆者(テルえもん)から渡されるアイテム(基礎知識)を駆使して問スターを倒し、レベルアップ(スキルアップ)を目指しましょう!


⇒前回の【レベル1】はこちら

【レベル2】指示された寸法値のみ使用せよ!

 3D CADを使用した実務や資格試験では、2D図面を基に3Dモデルを作成することがあります。このとき、2D図面に記載されている寸法値を正しく使用することが重要です。例えば、記載されていない寸法値を、他の寸法値から足し算や引き算などで計算し、それを入力パラメーターとして使用してしまうと、計算ミスによる誤りが生じたり、設計変更時に意図しない形状になったりする可能性があります。

 そこで今回は、2D図面で指示された寸法値のみを用いて3Dモデルを作成する際のテクニックについて解説します。

問スター(2)を攻略せよ!

 それでは、前回(レベル1)の最後に登場した問スター(2)を攻略していきましょう!

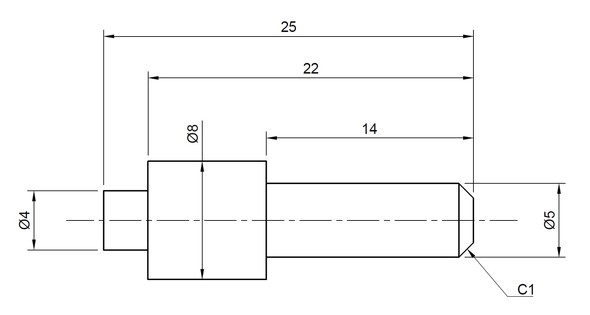
問スター(2)<2D図面から3Dモデルを作成せよ!> 図1 問スター(2)<2D図面から3Dモデルを作成せよ!>[クリックで拡大]

 図1に示した2D図面から3Dモデルを作成する際のポイントは、前回紹介したアイテム(3)「寸法補助記号」にあります。数字の前に付いている「φ」という記号は、「まる」または「ふぁい」と読み、直径を意味します。そのため、図だけを見ると四角い形状に見えるかもしれませんが、実際には円筒形状であることを読み取る必要があります(図2)。

問スター(2)の正解形状について 図2 問スター(2)の正解形状について[クリックで拡大]

 また、円筒の軸は、短い線と長い線が交互に繰り返される「一点鎖線」で描かれています(図3)。前回、2D図面上の「隠れ線隠線)」が“破線(点線)”で表されることを紹介しましたが、基準線や中心線は一点鎖線で表記されます。

問スター(2)にある一点鎖線 図3 問スター(2)にある一点鎖線[クリックで拡大]

 そして「C」の記号は、前回説明した通り「しー」と読み、45度の面取りを意味します。

 3D CADで実際に形状を作成する際には、スケッチで半分の断面形状を描き、それを回転させて立体形状を作成する方法Aと、スケッチに円を描いて押し出しで厚みを付け、円筒を作成する方法Bがあります(図4)。どちらの方法を用いる場合でも重要なのは、"図面に記載された寸法値のみを使用する”ことです。

方法Aと方法Bについて 図4 方法A(上段)と方法B(下段)について[クリックで拡大]

 方法Aでは半分の断面を描く際に、寸法値を直径ではなく半径で入力しようとすると、計算ミスにより誤った寸法を用いてしまう可能性があります。そのため、できるだけ2D図面に指示されている直径値をそのまま入力した方が、ミスを防ぐことができます。多くの3D CADソフトでは、半分の断面しか描いていない場合でも直径の値を入力できますので、お使いの3D CADの機能を確認してみてください。

 次に、方法Bについて説明します。例えば、φ8mmの円筒を作成する際に、押し出しで厚みを付けるパラメーターとして、22mmから14mmを引き算した「8mm」を入力するのではなく、できるだけ図面に指示されている「22mm」の寸法値をそのまま使用しましょう(図5)。

計算した値は使用しない 図5 計算した値は使用しない[クリックで拡大]

 その理由は、設計変更によって22mmの長さが20mmに変更された場合、あらかじめ計算して入力していた値も再計算する必要があり、計算ミスによって意図しない形状になる可能性があるためです。もちろん、設計者として明確な意図を持って計算値を入力する場合もありますが、特に理由がない場合には、2D図面に記載された寸法値を素直に使用して3Dモデルを作成するようにしましょう。

 それでは、自力で問スター(2)にチャレンジしてみてください!

 どうしても倒せない(分からない)、倒し方の手順を知りたいという方は、テルえもん直伝の攻略法動画を参考にしてみてください(動画1)。

動画1 問スター(2)の攻略法
       1|2|3 次のページへ

Copyright © ITmedia, Inc. All Rights Reserved.

特別協賛PR
スポンサーからのお知らせPR
Pickup ContentsPR
Special SitePR
あなたにおすすめの記事PR